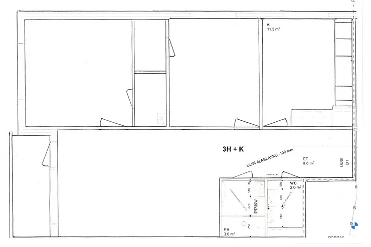
Siinä se on! Ostamamme 77 neliön kerrostalokolmio, joka kaipaa kovasti uutta ilmettä ennen seuraavia asukkaitaan. 1968 rakennetun talon asunto on nimittäin lähes alkuperäiskuntoinen kellertävällä muovimatolla, kellertävällä keittiöllä ja kellertävillä seinillään (ei edes tupakoitu, joku on vain pitänyt keltaisesta). 2016 uusittu kylpyhuone ja wc poikkeuksena ovat tehty paperinvalkoisina lattiasta kattoon.
Muuten asunto on pohjaratkaisultaan todella kiva! Vaikka en aikasemmin välittänyt lainkaan keittiöstä erillisenä huoneena olen alkanut lämmetä ajatukselle ja nyt se oikeastaan tuntuu jopa paremmalta ratkaisulta kuin tupakeittiö isommassa tilassa. Vaatehuoneiden kanssa sama juttu. Aluksi olin varma että puramme edes toisen ja laitamme tilalle tavalliset kaapit peililiukuovilla, mutta nyt ajatus erillisistä vaatehuoneista sopii juuri tuohon tilaan.
Paljon ideoita on pyöritelty ja vaihtoehtoja kustannuksineen vertailtu. Olemme kuitenkin saaneet jo avaimet käteen, joten tuumailu saa vaihtua toimintaan tässä vaiheessa. Tässä tulevan remontin budjetti ja mitä sillä olisi tarkoitus saada aikaan ennen heinäkuun loppua.
Kolmion remonttibudjetti
Keittiöremontista tulee väistämättä asunnon kallein remontti sillä uusimme kaikki kodinkoneet sekä kaapit. Luvanvaraisiin asennuksiin joudumme myös hankkimaan ulkopuolista työvoimaa ja mahdollisen lopputarkastajan näille töille. Ainoa ajallinen ja rahallinen säästö syntynee siinä, että emme pura lainkaan ohuita välitilalaattoja vaan asennamme uuden välitilalevyn niiden päälle.
Ensitöiksemme lähestyimmekin keittiöfirmoja pyytämällä tarjouksia ja menemällä vilkuilemaan valikoimaa. Tiesimme suunnilleen mitä keittiöltä haluamme, ja tarkalleen mitä emme.
Nyt viikonloppuna vahvistimme tilauksen, joka pääpiirteissään näyttää tältä: puoliksi yläkaapiton malli, kaikki kodinkoneet tulevat integroituina, alakaappien tilalle vetolaatikot, taso standardia ohuempana, värimaailman pidämme melko neutraalina, mutta valkoista välttäen.
Keittiön budjetti: 7000€
Asunnon lattian (ihanan kalanruotovinyylin) olemme ostaneet jo 2023 ja johon olen ollut ihastunut siitä saakka. Vaikka emme päässeet tätä omaan kotiin käyttämään olemme onneksi pystyneet säilyttämään sitä veloituksetta lämpimässä varastotilassa. Lattian osalta hankittavaksi jää siis vain listat ja mahdolliset asennustarvikkeet.
Seinät pääsevät tapeteista eroon, ne tasoitetaan ja maalataan. Osa olisi tarkoitus toteuttaa limewash-tekniikalla (??), josta itselläni ei ole lainkaan kokemusta, mutta lopputulos on pinterest-kuvien perusteella yrittämisen arvoinen.
Pintojen budjetti: 2300€
(sis. lattian)


Asunnon ovet ovat alkuperäiset, mutta hyväkuntoiset puuovet, joita löytyy asunnosta kolmessa eri koossa. Ne sopivat asunnon tyyliin, joten todennäköisesti tulevat saamaan vain uuden käsittelyn, maalipinnan ja kahvat.
Vaatehuoneet uusimme kokonaan ja lisäämme säilytystilaa myös eteiseen uusien mittatilattujen peililiukuovikaappien muodossa.
Ovien ja kappien budjetti: 1200€
Kaikki muu tilpehööri, tarvikkeet, valot, luvat, työt ja yllätykset: 500€
11 000€ remontti
Yhteensä remontti tulisi näillä luvuilla maksamaan 11 000€. Tähän päälle tietysti mukana juoksevat kulut sähköstä, vastikkeesta ja lainasta, mutta itse remontti olisi tarkoitus saada maaliin tuolla summalla. Joustovaraa pitäisi löytyä myös budjetin paukkumisen tai tyhjien kuukausien varalle.
Se kuinka kannattavaksi projekti tulee selviää vasta välittäjän arvion jälkeen. Tavoittelemme tulevalla remontilla asunolle merkittävää arvonnousua, joten vaikka vain pienellä tuunauksella tästä saisi vuokrauskelpoisen, niin haluamme toteuttaa remontin ajatuksella ja valinnoilla jotka oikeasti vaikuttavat arvoon.
Vuokrauksenkaan kannalta päivitetty ilme ei ole haitaksi ja ainakaan Kokkolan vuokramarkkinoilla ei ole paljoa oikeasti kivasti remontoituja asuntoja. Jokaisella tietysti oma makunsa, mutta luulen väri ja materiaalivalintojemme miellyttävän suurinta osaa 2020-luvun asukkaista.
Parhaassa tapauksessa asunnon arvo nousee, vakuutta vapautuu ja vuokrattavuus paranee.
Win, win, win✨

Jätä kommentti